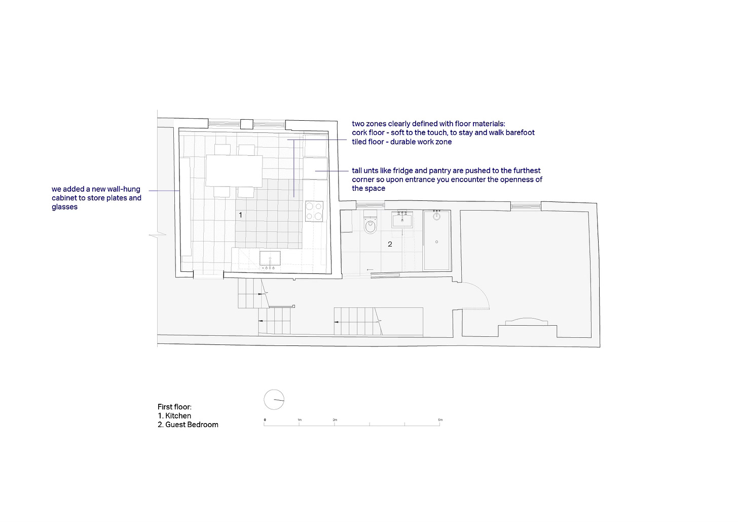
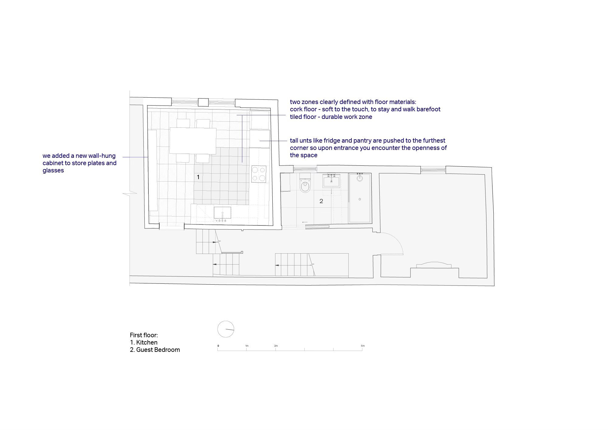
Careful changes
A short introduction to PMO and what to focus on when planning a renovation.
If you read nothing else, read this:
PMO is a London-based architectural studio that focuses on careful renovation.
I help homeowners understand what doesn’t work, what is worth keeping, and which changes will make the biggest difference.
If you have been thinking about renovation for a while but keep postponing it, the problem is most likely not budget or timing.
It is that the house works well enough.
Yet, it has compromises that irratate you every day:
The hallway is too dark.
The kitchen is cut off from the rest of the house.
There is never enough storage.
The bathroom door eats up too much space.
The dining table blocks the door to the garden.
You keep adapting to the house instead of the house serving your life.
That is the moment when it makes sense to speak to an architect.
I wrote about this in Designing Stillness, a case study about renovation in Valencia that started with a house that “worked well enough”.
What I do
I run PMO, a London-based architectural studio focused on the renovation of existing homes.
This can mean rethinking the layout, improving circulation, extending a house, or changing it’s internal logic so it works better for your daily life.
Most homes I work on have something worth keeping – good proportions, or original details, high quality materials.
The job is not to wipe all of that away, but to see clearly what deserves to stay and what is making the house harder to live in.
This idea is close to something I wrote earlier in Designing from outside in.
Why work with me
You are hiring me to understand what will make the biggest difference: to work out why the house feels wrong, and to fix that in a way that would be most meaningful.
For example, a client may come asking for a bigger bathroom. But once we look closely, the real issue is elsewhere. The bathroom sits in the wrong place, the bedroom loses useful space to a corridor, or three doors collide in one small corner.
Another client may think they need an extension. Sometimes they do. But sometimes they need a better plan, fewer dead corners, and storage that has been designed rather than improvised with free-standing furniture.
The work is not always about adding more. It is about changing less, but changing the right things.
Who I work with
I work best with clients who care about quality and want to make careful decisions about their home.
They are usually looking for more than a visual update. They want the house to function better, feel calmer, and support everyday life more naturally.
The strongest projects come from paying attention to layout, materials, and detail at the right time, rather than rushing through the building work and solving problems as they appear.
This kind of work suits people who want a result that will last.
Where we start
Every project starts with a conversation.
I need to understand the brief and whether I am the right person to help.
That first conversation is useful in itself, because it turns a vague feeling into something specific.
Whether you are thinking about an extension or an update to the key rooms of the house, we will discuss together and I will advise you on what to focus on.
The first step is to identify what will make the biggest difference, and what is worth investing in.
What happens next
Once the direction is clear, I develop layout options and test different ways the house could work.
We compare them, choose an approach, and refine the key spatial and material decisions. The project then moves into drawings and specifications for contractor pricing and construction.
But renovation work does not unfold seamlessly, so I recommend to not self manage construction.
Existing houses are full of unknowns. Once walls are opened up and floors come apart, new information appears. Dimensions are not quite what they seemed or there is structure that interrupts the plan.
Decisions have to be made quickly, often on site.
This is when a project is most vulnerable.
Without a continued architectural oversight during construction, small compromises start to accumulate. Contractor changes the detail because it is easier, substitutes material because it is cheaper or available sooner. As a result, proportions shift or a junction is resolved badly. One by one, these decisions can strip a project of its logic.
Then, the best-case outcome is a house that still works, but has lost much of its quality. Or, the worst-case outcome is a house with problems that have to be fixed later, at far greater cost.
I stay involved through tender and build because protecting the project during construction is as important as designing it in the first place.
If you are considering a renovation in London
If you are planning a residential renovation in London and are unsure how to move forward, get in touch.
Tell me about the house, where you are in the process, and what feels unresolved.
The first conversation is a way to understand whether I can help and whether we should work together.
About Polina Morova
I am an architectural designer based in East London.
Before founding PMO in 2022, I trained at the Bartlett School of Architecture, UCL, and worked at practices including Herzog & de Meuron and Carmody Groarke.
I also write Essential Architecture, where I explore space, domestic life, and what architecture is really for.







